master builder
master builder
We are excited to offer beautiful homes in the Mountain town of Fernie, B.C. Goldmark Homes offers modern mountain homes without all of the heavy design elements of the traditional definition of rustic mountain cabins. Our designs are harmonized with the pristine elements that living in the mountain offers. The modern elements include unique exteriors, uncluttered interior layouts, indoor/outdoor living and low maintenance to ensure against the mountain elements. Lots of windows offer natura
1. This home includes 4 bedrooms and 2 baths. With its majestic vaulted ceilings gives the feeling you can touch the mountains. Including hardwood floors, a main level master with spacious ensuite, custom chef kitchen and French doors off of the dining room – this home is an ideal mountain retreat. After a long day skiing, relax in your hot tub located on your generous back deck and take in the open skies and fresh air.
2. There is room for all of your sports gear and toys in the oversized 2 car garage/workshop area and even more overflow room in the mud room for all of those extras!




















Add a footnote if this applies to your business



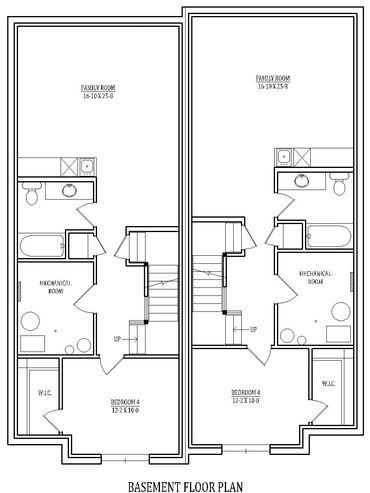
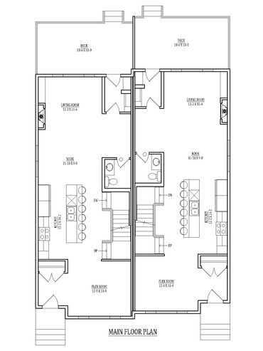
This 5 Plex takes advantage of an odd shaped triangular lot and creates an architectural residential complex that compliments the existing neighborhood. This property has been sold.


Add a footnote if this applies to your business

Main Floor - 884 sq. ft.

Second Floor - 902 sq. ft.

Basement - 815 sq. ft.

Main Floor - 650 Sq. Ft.

Second Floor - 676

Third Floor - 478 sq. ft.

Basement - 510 sq. ft.

Main Floor - 612 sq. ft.

Second Floor - 638 sq. ft.

Third Floor - 431 sq. ft.

Basement - Sq. Ft. 491 sq. ft.

Main Floor - 492 sq. ft.

Second Floor - 539 sq. ft.

Third Floor - 363 sq. ft.

Basement - 397 sq. ft.

Main Floor - 1041 sq. ft.

Second Floor - 1061 sq. ft.

Third Floor - 309 sq. ft.

Basement - 947 sq. ft.

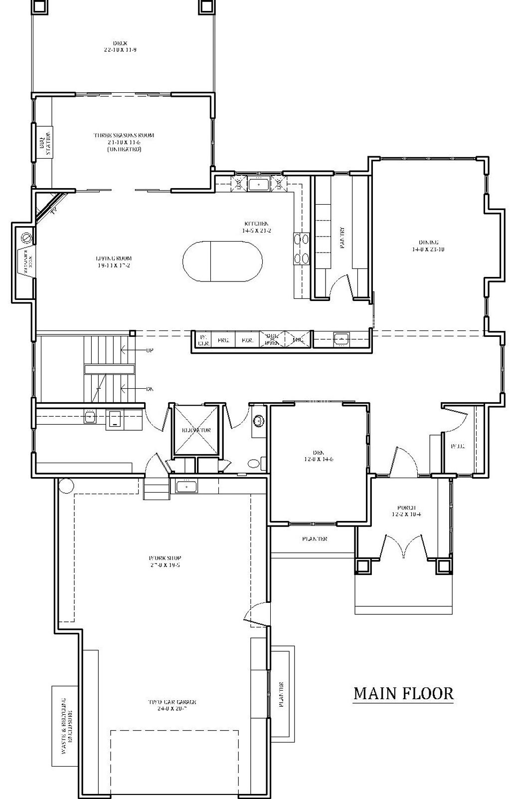
Front Elevation - Total square footage on three floors is 6278 sq. ft.
This home also included:
ENCLOSED PATIO = 273 SQ FT
UNDER GARAGE STORAGE = 520 SQ FT
COLD STORAGE = 134 SQ FT
THREE SEASONS ROOM = 273 SQ FT
COVERED PORCH = 114 SQ FT
GARAGE = 1015 SQ FT
DECK = 268 SQ FT
PATIO = 268 SQ FT

Rear Elevation

Main Floor - 2260 sq. ft.

Second Floor - 2259 sq. ft.

Basement - 1759 sq. ft.